Due to the health concerns created by Coronavirus we are offering personal 1-1 online video walkthough tours where possible.

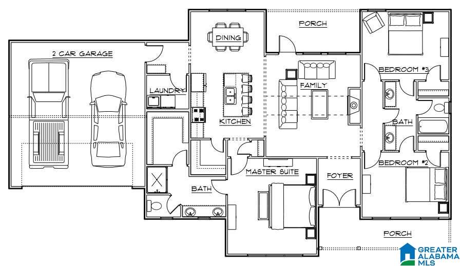
Charming 3-bedroom, 2-bathroom home spanning 1,644 square feet. This beautiful residence boasts an open-concept design, vaulted ceilings, and generously sized bedrooms, all showcasing exceptional attention to detail. Upon entering, you're welcomed into the living room, highlighted by a stunning fireplace that serves as the room's centerpiece. The living room seamlessly flows into a kitchen that features a large center island, perfect for gathering. Large windows illuminate the dining area, which conveniently leads to the laundry room, a practical drop zone, and garage access.The primary suite offers a spacious bedroom and an expansive in-suite bathroom complete with a walk-in closet. At the back of the home, a covered porch awaits, ideal for family grill-outs. Discover our inspiring homes, equipped with double-hung low E glass windows, granite countertops, and so much more.
| 9 hours ago | Listing updated with changes from the MLS® | |
| 3 weeks ago | Listing first seen on site |
Did you know? You can invite friends and family to your search. They can join your search, rate and discuss listings with you.